star twitter facebook envelope linkedin youtube alert-red alert home left-quote chevron hamburger minus plus search triangle x

XÂY DỰNG HÌNH CHIẾU THẲNG GÓC TỪ HÌNH CHIẾU TRỤC ĐO


NỘI DUNG và YÊU CẦU:

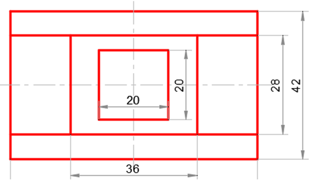
  • Cho hình không gian vật thể
  • Vẽ 3 hình chiếu thảng góc
  • Ghi kích thước đầy đủ.
  • Trình bày trên A4 T.L: 1:1

CÁC BƯỚC THỰC HIỆN:

 - Bước 1: Nhìn vật thể từ trước

     Ta được hình chiếu đứng:

- Bước 2: Nhìn vật thể từ trên

Ta được hình chiếu bằng:

- Bước 3: Nhìn từ trái

Ta được hình chiếu cạnh:

- Bước 4: Lập bản vẽ: