star twitter facebook envelope linkedin youtube alert-red alert home left-quote chevron hamburger minus plus search triangle x

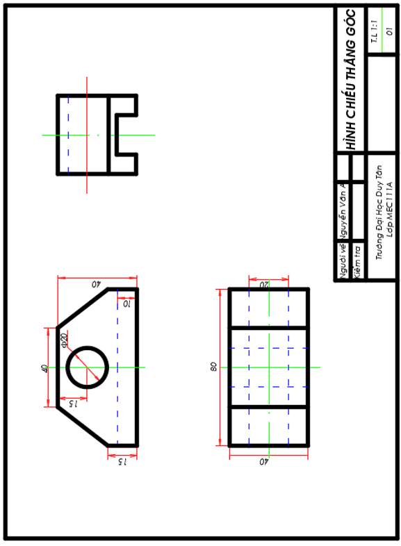
XÂY DỰNG HÌNH CHIẾU THẲNG GÓC VẬT THỂ TỪ HÌNH CHIẾU TRỤC ĐO


NỘI DUNG:

            Cho hình chiếu trục đo (hình chiếu nổi) của vật thể.

YÊU CẦU:

  • Vẽ 3 hình chiếu thẳng góc của vật thể.
  • Ghi kích đầy đủ (không thừa, không thiếu, không lặp).
  • Trình bày trên A4, T.L: 1:1

1. Hướng nhìn từ trước: Ta có hình chiếu đứng

2. Hướng nhìn từ trên: Ta có hình chiếu bằng

3. Hướng nhìn từ trái: Ta có hình chiếu cạnh